―― 駅徒歩2分 × 45坪のゆとり ――

専任物件だからこそ語れる「3つの価値」と「暮らしを彩る間取り」
■ 物件の3大プレミアムポイント
【01】「駅徒歩2分」がもたらす圧倒的な資産価値
朝の準備にゆとりが生まれ、夜道も安心なJR川越線「的場」駅徒歩2分。この近さは将来の売却や賃貸時にも揺るぎない強みとなります。
【02】駅近の常識を覆す「45坪」のゆとりある敷地
駅近物件にありがちな「隣家との圧迫感」はありません。カースペース2台を確保しつつ、空地を設けた贅沢な配置です。
【03】全室南向き。光と風をデザインした住空間
1階・2階すべての居室が南側に面しており、一日中明るい陽光が差し込みます。冬場でも暖かく、健やかな暮らしを実現します。

■ 間取りのプロが教える「この家の住み心地」
図面からは見えにくい、生活動線のこだわりを詳しくご紹介します。
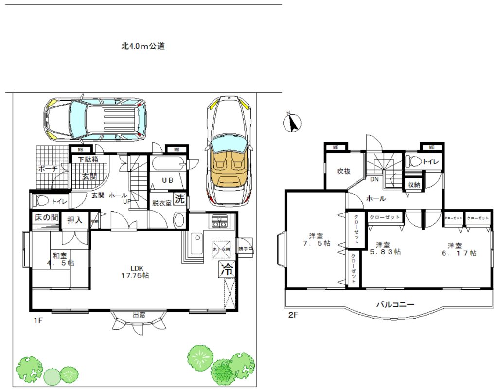
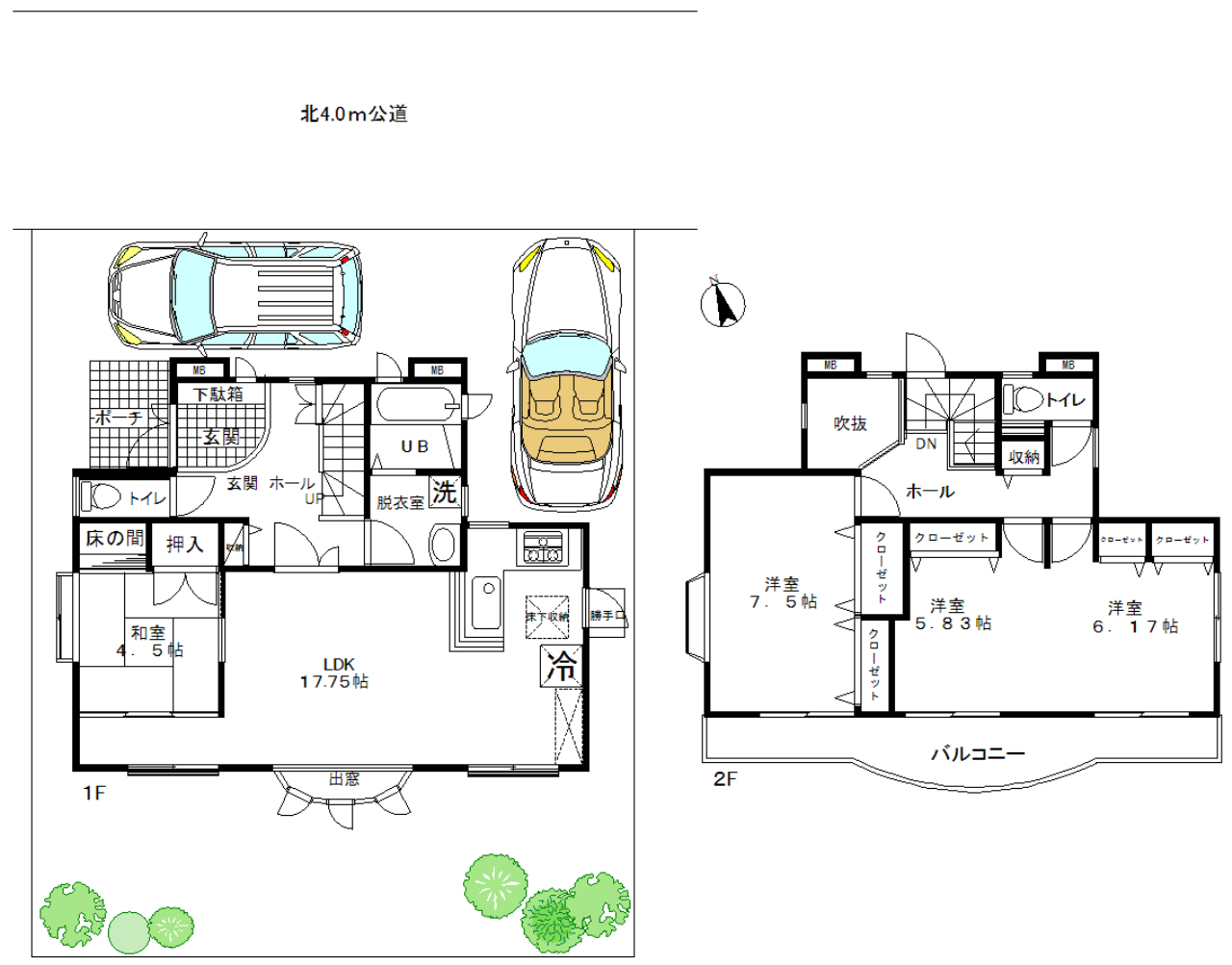
【1階】家族が自然と集まる、開放的なパブリック空間
- 17.7帖の広々LDKと出窓の魔法
南面の大きな窓に加え、サイドに設けられた「出窓」が視覚的な広がりを演出。家具の配置もしやすく、インテリアが映える空間です。 - 家事効率を極めたL字型キッチン
シンクとコンロの移動距離が短いL字型を採用。お料理の効率が格段に上がります。対面式なので、リビングで寛ぐ家族との会話も途切れません。 - 多機能な4.5帖の和室
リビングと隣接しており、お子様のプレイルームや、お昼寝スペースに最適。来客時には独立した「客間」としても機能する万能な一間です。
【2階】プライバシーと個性を尊重するプライベート空間
- 主寝室にふさわしい7.5帖の洋室
ダブルベッドを置いてもゆとりのある広さ。バルコニーに面し、朝の目覚めも爽やかです。 - 独立性の高い2つの洋室(5.8帖・6.1帖)
全室に収納を完備。お子様それぞれに個室を与えられるだけでなく、一室を「テレワーク専用ルーム」にしても十分な広さがあります。 - ゆとりの玄関ホール
玄関から階段へ直接アクセスできる配置のため、家族間のプライバシーを保ちやすく、来客時もスマートに対応できます。




■ 物件概要(物件番号:37155)
- 価格:2,780万円
- 土地面積:150.03㎡(45.38坪)
- 建物面積:108.26㎡(32.74坪)
- 交通:JR川越線「的場」駅 徒歩2分
- 周辺:ベルク(約700m)、ファミリーマート(約380m)など利便施設が徒歩圏内。
【専任媒介:ご案内・資料請求】
本物件は弊社が直接窓口となっております。
オーナー様からお預かりした大切な物件ですので、詳細な維持管理状況まで丁寧にご説明いたします。株式会社カサハラらんどホーム
物件詳細ページ
電話:049-285-6300(10:00〜18:00 / 水曜定休)
「物件番号37155」とお伝えいただくとスムーズです。