価格 |
2,780万円 |
種目 |
中古戸建 |
|---|---|---|---|
交通 |
JR川越線的場駅まで 徒歩2分
東武東上線霞ヶ関駅まで 徒歩17分 |
||
所在地 |
川越市大字的場 |
駐車場 |
2台 |
間取 |
4LDK |
間取詳細 |
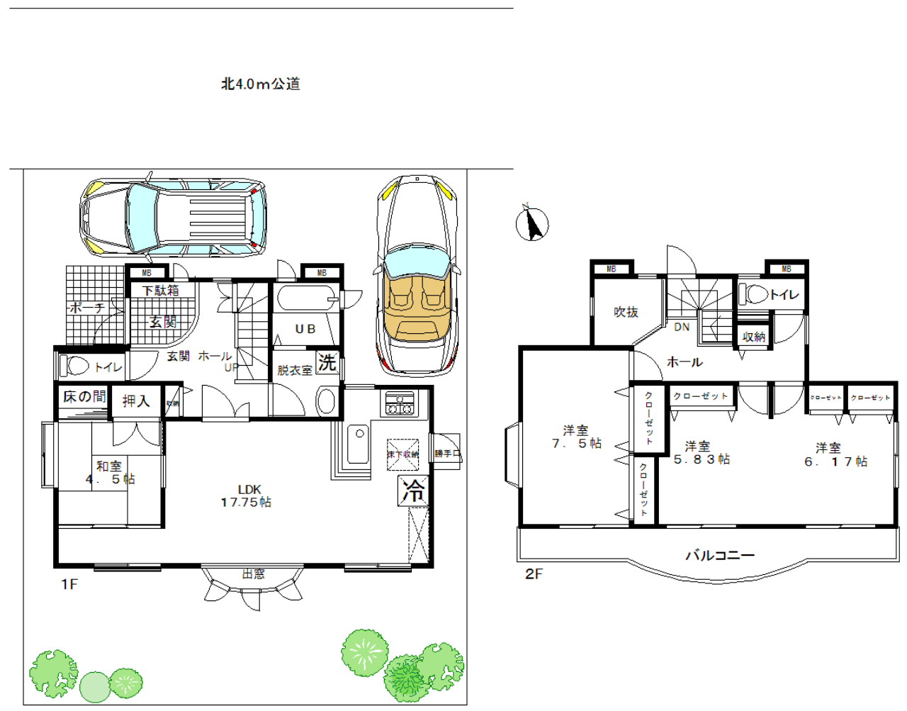
(1F)LDK17.7、(1F)和4.5、(2F)洋7.5、(2F)洋5.8、(2F)洋6.1 |
西暦築年月 |
2005/07(築20年) |
現況 |
居住中 |
土地面積 |
150.03m²(45.38坪) |
建物面積 |
108.26m²(32.74坪) |
学区 |
川越市立霞ヶ関小学校 1,600m
川越市立霞ヶ関中学校 1,800m |
お電話でのお問い合わせ
物件番号:37155
お電話でお問い合わせの際は、物件番号をお伝えください。
049-285-6300
営業時間:10:00~18:00
定休日:水曜日
ポイント
POINT
☆川越市立霞ヶ関小学校霞ヶ関中学校の通学区です
☆公営水道、本下水、個別プロパンガス
☆みよしの幼稚園(約470m)
☆ファミリーマート川越的場店(約380m)
☆セブンイレブン川越的場駅北店(約380m)
☆ベルク的場店(約700m)
☆あかね訪問診療クリニック(約120m)
☆公営水道、本下水、個別プロパンガス
☆みよしの幼稚園(約470m)
☆ファミリーマート川越的場店(約380m)
☆セブンイレブン川越的場駅北店(約380m)
☆ベルク的場店(約700m)
☆あかね訪問診療クリニック(約120m)
物件詳細DETAIL
バス停名 |
停歩 |
||
|---|---|---|---|
建物構造 |
木造 |
地目 |
宅地 |
建ぺい率 |
60% |
容積率 |
160% |
都市計画 |
市街化区域 |
用途地域 |
第一種住居地域 |
取引態様 |
仲介 |
引渡時期 |
相談 |
接道(全て) |
北 4m(幅員) 公道 |
土地権利 |
所有権 |
特色 |
☆川越市的場 中古戸建て ☆家族が自然と集まるゆとり空間。 ☆L字対面キッチンで会話も弾みます。 ☆和室の客間はお子様の遊び場老後の寝室としても活用可能。 ☆南面バルコニーで洗濯物も快適。 ☆玄関ホールゆったり設計来客時も安心の広さ。 ☆家事動線がスムーズな水回り集中設計 ☆2階フロア構成子ども部屋やテレワーク室にも最適 ☆JR川越線『的場駅』徒歩2分! ☆敷地面積45坪! ☆平成17年7月築 ☆4LDK中古住宅です! ☆出窓があり開放感たっぷりの広々したリビング! ☆全室南向きで陽当り良好です! ☆駅まで徒歩2分で通勤通学に便利な場所です! ☆駐車場2台! ☆川越市立霞ヶ関小学校霞ヶ関中学校の通学区です ☆公営水道、本下水、個別プロパンガス ☆みよしの幼稚園(約470m)、ファミリーマート川越的場店(約380m)、セブンイレブン川越的場駅北店(約380m)、ベルク的場店(約700m)、あかね訪問診療クリニック(約120m) |
||
情報更新日 |
2026年03月01日 |
次回更新予定日 |
2026年03月02日 |
取引条件有効期限 |
2026年03月01日 |
評価点 |
89点 |
他社ホームページやポータルサイトで気になる物件がありましたらお気軽にお問い合わせ下さい。 |
※掲載されている物件データが現状と異なる場合は現状を優先します。
周辺地図MAP
ローンシミュレーション
LOAN SIMULATION
- 物件の価格
- 2,780万円
- 月々の返済額
- 円
- 年間の返済額
- 円
- 返済総額
- 円
- 利息合計
- 円
万円
%
年
※毎回の返済額が開始から終了まで均等となる「元利均等返済」で算出しています。
※金利は期間中固定となる固定金利を採用しています。
※月々の返済額は小数点以下を繰り上げしています。
※シミュレーションでの結果は、あくまでも目安で、概算になります。実際にローン契約をする際は、詳細を金融機関にご確認ください。
※実際のローン契約時には諸費用・税金(手数料や印紙税、保証料など)が別途かかりますので、契約の際にご確認ください。
株式会社カサハラらんどホームCOMPANY
所在地 |
埼玉県鶴ヶ島市鶴ヶ丘1-20 |
||
|---|---|---|---|
免許番号 |
埼玉県知事免許(4)第21347号 |
||
会員 |
(社)不動産保証協会
(社)全日本不動産協会
|
||
電話番号 |
049-285-6300 |
FAX番号 |
049-285-6305 |
営業時間 |
10:00~18:00 |
定休日 |
水曜日 |
他社ホームページやポータルサイトで気になる物件がありましたらお気軽にお問い合わせ下さい。
