価格 |
2,580万円 |
種目 |
中古戸建 |
|---|---|---|---|
交通 |
東武東上線鶴ヶ島駅まで 徒歩26分 |
||
所在地 |
川越市大字小堤 |
駐車場 |
2台 |
間取 |
4LDK |
間取詳細 |
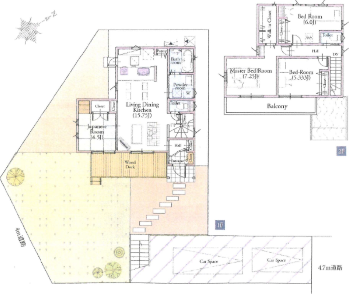
(1F)LDK15.7、(1F)和4.5、(2F)洋5.3、(2F)洋6、(2F)洋7.5 |
西暦築年月 |
2017/00(築9年) |
現況 |
居住中 |
土地面積 |
222.72m²(67.37坪) |
建物面積 |
95.01m²(28.74坪) |
学区 |
川越市立名細小学校 200m
川越市立名細中学校 490m |
お電話でのお問い合わせ
物件番号:37213
お電話でお問い合わせの際は、物件番号をお伝えください。
049-285-6300
営業時間:10:00~18:00
定休日:水曜日
物件詳細DETAIL
バス停名 |
停歩 |
||
|---|---|---|---|
建物構造 |
木造 |
地目 |
宅地 |
建ぺい率 |
60% |
容積率 |
200% |
都市計画 |
市街化調整区域 |
用途地域 |
無指定 |
取引態様 |
仲介 |
引渡時期 |
相談 |
接道(全て) |
北西 4.7m(幅員) 公道 |
土地権利 |
所有権 |
特色 |
☆川越市小堤 美晴らしの丘に建つ家 ☆ディーズガーデンお庭部門2016年ディーズガーデン賞受賞! ☆家族とペットの絆をつなぐ高級感のある庭付の邸宅 ☆北側公園用地です。 ☆駐車場2台 ☆公営水道、合併浄化槽、オール電化住宅! ☆日当り良好! ☆築10年以内の築浅物件! |
||
情報更新日 |
2026年03月17日 |
次回更新予定日 |
2026年03月18日 |
取引条件有効期限 |
2026年03月17日 |
評価点 |
88点 |
※掲載されている物件データが現状と異なる場合は現状を優先します。
周辺地図MAP
ローンシミュレーション
LOAN SIMULATION
- 物件の価格
- 2,580万円
- 月々の返済額
- 円
- 年間の返済額
- 円
- 返済総額
- 円
- 利息合計
- 円
万円
%
年
※毎回の返済額が開始から終了まで均等となる「元利均等返済」で算出しています。
※金利は期間中固定となる固定金利を採用しています。
※月々の返済額は小数点以下を繰り上げしています。
※シミュレーションでの結果は、あくまでも目安で、概算になります。実際にローン契約をする際は、詳細を金融機関にご確認ください。
※実際のローン契約時には諸費用・税金(手数料や印紙税、保証料など)が別途かかりますので、契約の際にご確認ください。
株式会社カサハラらんどホームCOMPANY
所在地 |
埼玉県鶴ヶ島市鶴ヶ丘1-20 |
||
|---|---|---|---|
免許番号 |
埼玉県知事免許(4)第21347号 |
||
会員 |
(社)不動産保証協会
(社)全日本不動産協会
|
||
電話番号 |
049-285-6300 |
FAX番号 |
049-285-6305 |
営業時間 |
10:00~18:00 |
定休日 |
水曜日 |

