価格 |
3,680万円 |
種目 |
新築戸建 |
|---|---|---|---|
交通 |
東武東上線新河岸駅まで 徒歩17分 |
||
所在地 |
川越市砂新田5丁目 |
駐車場 |
1台 |
間取 |
3LDK |
間取詳細 |
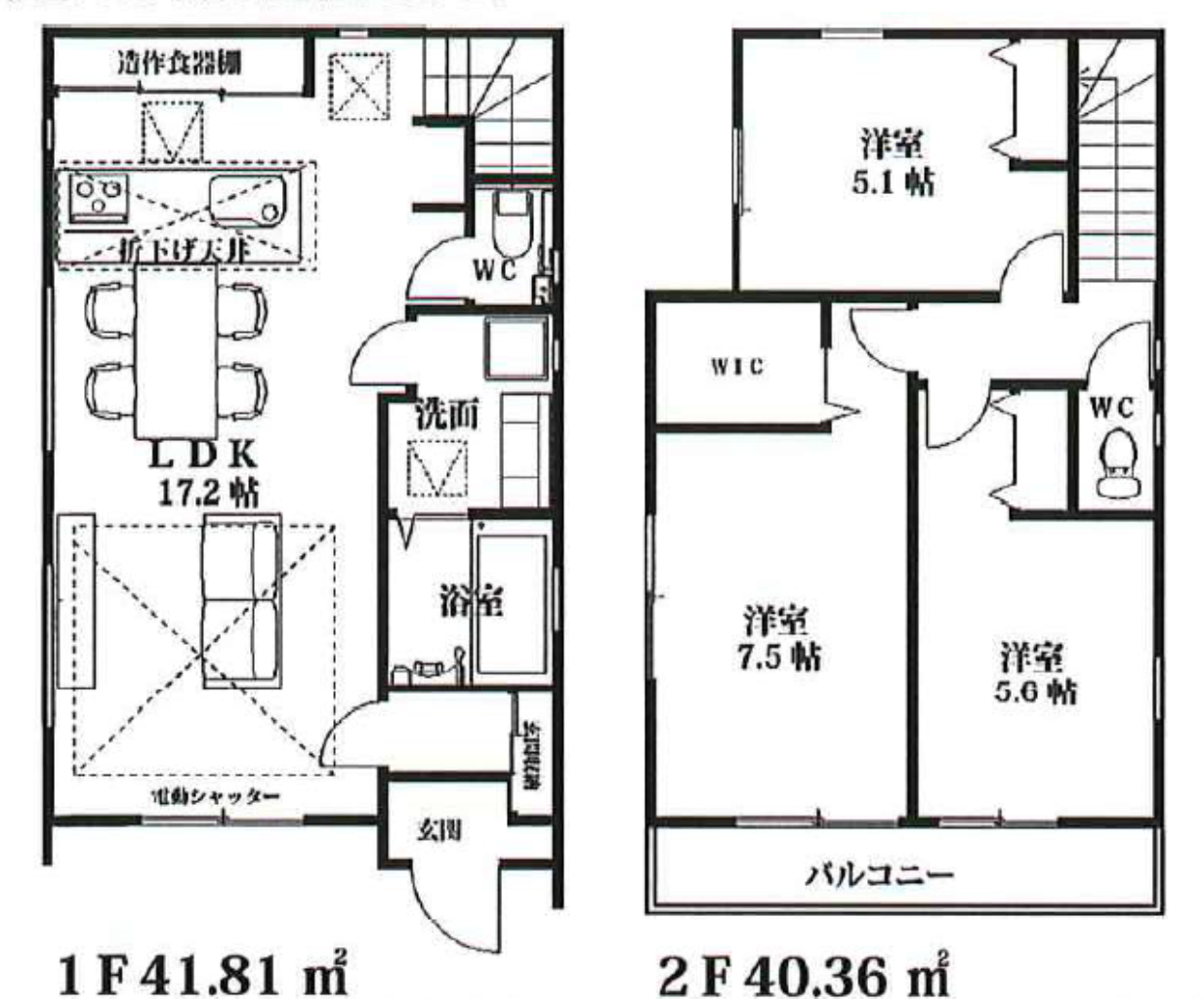
(1F)LDK17.2、(2F)洋5.1、(2F)洋7.5、(2F)洋5.6 |
西暦築年月 |
2026/06(建築予定) |
現況 |
建設中 |
土地面積 |
86m²(26.01坪) |
建物面積 |
82.17m²(24.85坪) |
学区 |
川越市立高階北小学校 960m
川越市立高階中学校 810m |
★仲介手数料無料 |
お電話でのお問い合わせ
物件番号:37206
お電話でお問い合わせの際は、物件番号をお伝えください。
049-285-6300
営業時間:10:00~18:00
定休日:水曜日
物件詳細DETAIL
バス停名 |
停歩 |
||
|---|---|---|---|
建物構造 |
木造 |
地目 |
宅地 |
建ぺい率 |
50% |
容積率 |
100% |
都市計画 |
市街化区域 |
用途地域 |
第一種低層住居専用地域 |
取引態様 |
仲介 |
引渡時期 |
2026/06 下旬 |
接道(全て) |
南東 4m(幅員) 公道 |
土地権利 |
所有権 |
特色 |
☆川越市砂新田第11期 新築一戸建て ★新築仲介手数料無料! ☆東武東上線『新河岸駅』徒歩17分! ☆敷地面積26坪! ☆南東道路・陽当たり良好です! ☆対面キッチンやリビングイン階段のあるリビング! ☆食器洗浄機、浄水器付きフルフラットキッチン、節水型ローシルエットトイレ、ペアガラス、大型洗面化粧台、玄関ドアスマートキー、大型造作カップボード、造作シューズクロークなどの設備! ☆駐車場1台! ☆川越市立高階北小学校まで徒11分、高階中学校まで徒歩徒歩9分の通学距離です! ☆瑕疵担保保険加入物件! ☆住宅性能評価書取得! ☆公営水道、本下水、都市ガス ☆コープ高階店…徒歩9分、いなげや川越新河岸店…徒歩11分、ヤオコー川越藤間店…徒歩17分、ファミリーマート川越砂新田4丁目店…徒歩5分、セブンイレブン川越新河岸店…徒歩12分、ドラッグセイムス新河岸店…徒歩6分、高階郵便局…徒歩13分 ※現地販売業者さんは売主ではございません。アンケート等の手続きをされますと当社での物件紹介(仲介料手数料無料)が出来なくなります。ご内覧を希望のお客様は当社にて立ち合い・ご案約をさせて頂きますのでお手数ですがTEL049-285-6300までお電話下さい。急いで現地へ向かいますので御連絡お待ちしております。 |
||
情報更新日 |
2026年03月08日 |
次回更新予定日 |
2026年03月09日 |
取引条件有効期限 |
2026年03月08日 |
評価点 |
87点 |
他社ホームページやポータルサイトで気になる物件がありましたらお気軽にお問い合わせ下さい。 |
※掲載されている物件データが現状と異なる場合は現状を優先します。
周辺地図MAP
ローンシミュレーション
LOAN SIMULATION
- 物件の価格
- 3,680万円
- 月々の返済額
- 円
- 年間の返済額
- 円
- 返済総額
- 円
- 利息合計
- 円
万円
%
年
※毎回の返済額が開始から終了まで均等となる「元利均等返済」で算出しています。
※金利は期間中固定となる固定金利を採用しています。
※月々の返済額は小数点以下を繰り上げしています。
※シミュレーションでの結果は、あくまでも目安で、概算になります。実際にローン契約をする際は、詳細を金融機関にご確認ください。
※実際のローン契約時には諸費用・税金(手数料や印紙税、保証料など)が別途かかりますので、契約の際にご確認ください。
株式会社カサハラらんどホームCOMPANY
所在地 |
埼玉県鶴ヶ島市鶴ヶ丘1-20 |
||
|---|---|---|---|
免許番号 |
埼玉県知事免許(4)第21347号 |
||
会員 |
(社)不動産保証協会
(社)全日本不動産協会
|
||
電話番号 |
049-285-6300 |
FAX番号 |
049-285-6305 |
営業時間 |
10:00~18:00 |
定休日 |
水曜日 |
他社ホームページやポータルサイトで気になる物件がありましたらお気軽にお問い合わせ下さい。
