価格 |
2,890万円 |
種目 |
新築戸建 |
|---|---|---|---|
交通 |
西武新宿線本川越駅まで 徒歩63分
東武東上線川越市駅まで 徒歩65分 |
||
所在地 |
川越市大字菅間 |
駐車場 |
2台 |
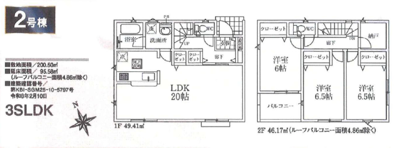
間取 |
3LDK |
間取詳細 |
(1F)LDK20、(2F)洋6、(2F)洋6.5、(2F)洋6.5 |
西暦築年月 |
2026/05(建築予定) |
現況 |
建設中 |
土地面積 |
200.5m²(60.65坪) |
建物面積 |
95.58m²(28.91坪) |
学区 |
川越市立芳野小学校 2,100m
川越市立芳野中学校 2,000m |
★仲介手数料無料 |
お電話でのお問い合わせ
物件番号:37188
お電話でお問い合わせの際は、物件番号をお伝えください。
049-285-6300
営業時間:10:00~18:00
定休日:水曜日
物件詳細DETAIL
バス停名 |
停歩 |
||
|---|---|---|---|
建物構造 |
木造 |
地目 |
宅地 |
建ぺい率 |
60% |
容積率 |
200% |
都市計画 |
市街化調整区域 |
用途地域 |
無指定 |
取引態様 |
仲介 |
引渡時期 |
2026/05 下旬 |
接道(全て) |
北 6.2m(幅員) 公道 |
土地権利 |
所有権 |
特色 |
【2号棟】 ☆川越市菅間第3 新築一戸建て 全3棟現場 ★新築仲介手数料無料! ☆西武新宿線『本川越駅』まで約5km、東武東上線『川越市駅』まで約5.2km ☆土地面積60坪! ☆システムキッチン、ユニットバス、浴室乾燥機、シャワートイレ、人感センサー付き玄関灯、TVモニター付きインターホン、防犯カメラ、ペアガラスなどの設備付き! 駐車場2台! ☆川越市立芳野小学校、芳野中学校の通学区です ☆住宅性能評価書取得予定物件! ☆フラット35S利用可! ☆公営水道、本下水、個別プロパンガス ☆ファミリーマート川越府川高畑店…徒歩17分、ヤオコー川越山田店…徒歩38分、スギドラッグ川越山田店…徒歩39分、川越宮元郵便局…徒歩34分、芳野保育園…徒歩20分 ※現地販売業者さんは売主ではございません。 アンケート等の手続きをされますと当社での物件紹介(仲介料手数料無料)が出来なくなります。ご内覧を希望のお客様は当社にて立ち合い・ご案内をさせて頂きますのでお手数ですがTEL049-285-6300までお電話下さい。急いで現地へ向かいますので御連絡お待ちしております。 |
||
情報更新日 |
2026年03月03日 |
次回更新予定日 |
2026年03月04日 |
取引条件有効期限 |
2026年03月03日 |
評価点 |
87点 |
※掲載されている物件データが現状と異なる場合は現状を優先します。
周辺地図MAP
ローンシミュレーション
LOAN SIMULATION
- 物件の価格
- 2,890万円
- 月々の返済額
- 円
- 年間の返済額
- 円
- 返済総額
- 円
- 利息合計
- 円
万円
%
年
※毎回の返済額が開始から終了まで均等となる「元利均等返済」で算出しています。
※金利は期間中固定となる固定金利を採用しています。
※月々の返済額は小数点以下を繰り上げしています。
※シミュレーションでの結果は、あくまでも目安で、概算になります。実際にローン契約をする際は、詳細を金融機関にご確認ください。
※実際のローン契約時には諸費用・税金(手数料や印紙税、保証料など)が別途かかりますので、契約の際にご確認ください。
株式会社カサハラらんどホームCOMPANY
所在地 |
埼玉県鶴ヶ島市鶴ヶ丘1-20 |
||
|---|---|---|---|
免許番号 |
埼玉県知事免許(4)第21347号 |
||
会員 |
(社)不動産保証協会
(社)全日本不動産協会
|
||
電話番号 |
049-285-6300 |
FAX番号 |
049-285-6305 |
営業時間 |
10:00~18:00 |
定休日 |
水曜日 |

他社ホームページやポータルサイトで気になる物件がありましたらお気軽にお問い合わせ下さい。
