価格 |
2,850万円 |
種目 |
中古戸建 |
|---|---|---|---|
交通 |
JR川越線的場駅まで 徒歩13分 |
||
所在地 |
川越市的場2丁目 |
駐車場 |
2台 |
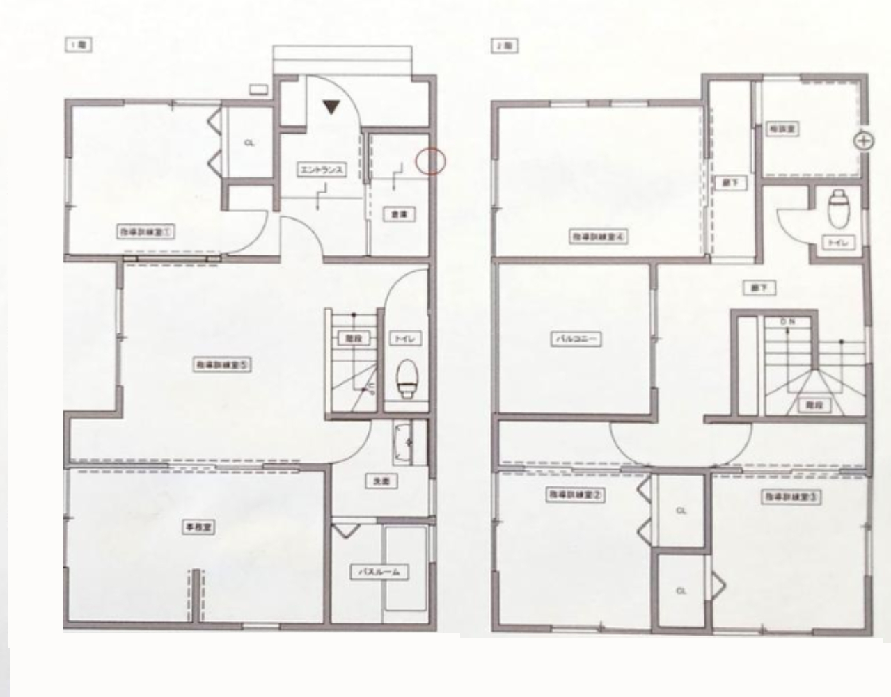
間取 |
4LDK |
間取詳細 |
(1F)LDK17、(1F)和4.5、(2F)洋7.75、(2F)洋6、(2F)洋6 |
西暦築年月 |
2018/11(築7年) |
現況 |
空家 |
土地面積 |
120.99m²(36.59坪) |
建物面積 |
105.16m²(31.81坪) |
学区 |
川越市立霞ヶ関小学校 600m
川越市立霞ヶ関中学校 900m |
お電話でのお問い合わせ
物件番号:37142
お電話でお問い合わせの際は、物件番号をお伝えください。
049-285-6300
営業時間:10:00~18:00
定休日:水曜日
物件詳細DETAIL
バス停名 |
停歩 |
||
|---|---|---|---|
建物構造 |
木造 |
地目 |
宅地 |
建ぺい率 |
60% |
容積率 |
200% |
都市計画 |
市街化区域 |
用途地域 |
第一種低層住居専用地域 |
取引態様 |
仲介 |
引渡時期 |
相談 |
接道(全て) |
西 6m(幅員) 公道 |
土地権利 |
所有権 |
特色 |
☆川越的場2丁目 中古戸建て ☆2026年リフォーム済み! ☆平成30年築の築浅中古戸建て ☆JR川越線『的場駅』徒歩15分 ☆JR川越線『的場駅』まで徒歩15分! ☆敷地面積36坪! ☆中古フラット35利用可! ☆スーパーなど生活施設も整い、保育園や幼稚園、小・中学校、公園も徒歩圏内で子育ても安心できる閑静な住宅地です! ☆シューズクロークのある玄関やウォークインクローゼット付きの洋室など収納に配慮した広々な住空間プラン! ☆川越市立霞ヶ関小学校まで徒歩8分、霞ヶ関中学校まで徒歩12分の通学距離です ☆テレビモニター付インターホン、トイレウォシュレット、洗面化粧台シャンプードレッサー、ビルトイン浄水器、追焚き機能付き1坪タイプバス、断熱玄関ドア、日用品の保管に便利な床下収納などの設備! ☆駐車場2台分 ☆公営水道、本下水、都市ガス ☆さくらんぼ第二保育園(約486m)、ローソン川越的場一丁目店(約600m)、ヤオコー川越的場店(約481m)、JAいるま野霞ヶ関支店(約852m)、川越伊勢原郵便局(約981m)、桃太郎クリニック(約613m)、島忠ホームズ川越的場店(約383m)、ザ・マーケットプレイス川越的場(約479m) |
||
情報更新日 |
2026年02月22日 |
次回更新予定日 |
2026年02月23日 |
取引条件有効期限 |
2026年02月22日 |
評価点 |
85点 |
他社ホームページやポータルサイトで気になる物件がありましたらお気軽にお問い合わせ下さい。 |
※掲載されている物件データが現状と異なる場合は現状を優先します。
周辺地図MAP
ローンシミュレーション
LOAN SIMULATION
- 物件の価格
- 2,850万円
- 月々の返済額
- 円
- 年間の返済額
- 円
- 返済総額
- 円
- 利息合計
- 円
万円
%
年
※毎回の返済額が開始から終了まで均等となる「元利均等返済」で算出しています。
※金利は期間中固定となる固定金利を採用しています。
※月々の返済額は小数点以下を繰り上げしています。
※シミュレーションでの結果は、あくまでも目安で、概算になります。実際にローン契約をする際は、詳細を金融機関にご確認ください。
※実際のローン契約時には諸費用・税金(手数料や印紙税、保証料など)が別途かかりますので、契約の際にご確認ください。
株式会社カサハラらんどホームCOMPANY
所在地 |
埼玉県鶴ヶ島市鶴ヶ丘1-20 |
||
|---|---|---|---|
免許番号 |
埼玉県知事免許(4)第21347号 |
||
会員 |
(社)不動産保証協会
(社)全日本不動産協会
|
||
電話番号 |
049-285-6300 |
FAX番号 |
049-285-6305 |
営業時間 |
10:00~18:00 |
定休日 |
水曜日 |
他社ホームページやポータルサイトで気になる物件がありましたらお気軽にお問い合わせ下さい。
