価格 |
3,980万円 |
種目 |
新築戸建 |
|---|---|---|---|
交通 |
東武東上線上福岡駅まで 徒歩15分
東武東上線新河岸駅まで 徒歩17分 |
||
所在地 |
川越市大字寺尾 |
駐車場 |
1台 |
間取 |
4LDK |
間取詳細 |
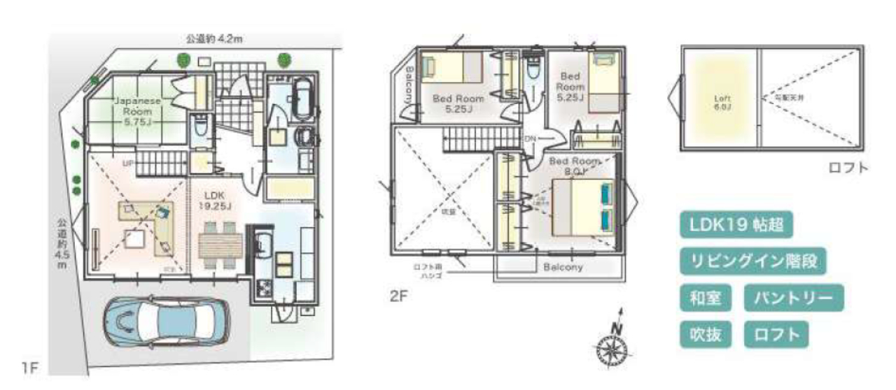
(1F)LDK19.25、(1F)和5.75、(2F)洋5.25、(2F)洋5.25、(2F)洋8 |
西暦築年月 |
2024/12(築1年) |
現況 |
完成済 |
土地面積 |
100.05m²(30.26坪) |
建物面積 |
99.63m²(30.13坪) |
学区 |
川越市立寺尾小学校 960m
川越市立寺尾中学校 720m |
★仲介手数料無料 |
お電話でのお問い合わせ
物件番号:36963
お電話でお問い合わせの際は、物件番号をお伝えください。
049-285-6300
営業時間:10:00~18:00
定休日:水曜日
物件詳細DETAIL
バス停名 |
停歩 |
||
|---|---|---|---|
建物構造 |
木造 |
地目 |
宅地 |
建ぺい率 |
60% |
容積率 |
100% |
都市計画 |
市街化区域 |
用途地域 |
第一種低層住居専用地域 |
取引態様 |
仲介 |
引渡時期 |
即時 |
接道(全て) |
北 4.2m(幅員) 公道
西 4.5m(幅員) 公道 |
土地権利 |
所有権 |
特色 |
【8号棟】 ☆ピアタウン川越市寺尾Ⅱ 新築一戸建て ★仲介手数料無料新築一戸建て! ☆東武東上線『上福岡駅』徒歩15分、『新河岸駅』徒歩17分! ☆敷地面積30坪! ☆令和6年12月完成済み・未入居! ☆即日引き渡し可能です! ☆北西角地! ☆リビングイン階段や対面キッチン、パントリー付きのリビング! ☆ロフト付き! ☆駐車場1台! ☆川越市立寺尾小学校まで徒歩12分、寺尾中学校まで徒歩9分の通学距離です! ☆公営水道、本下水、都市ガス ☆イオンタウン…徒歩22分、コモディイイダ…徒歩7分、清水町公園…徒歩7分、COCONE…徒歩15分、ローソン…徒歩9分、高階保育園…徒歩7分 |
||
情報更新日 |
2026年03月14日 |
次回更新予定日 |
2026年03月15日 |
取引条件有効期限 |
2026年03月14日 |
評価点 |
88点 |
他社ホームページやポータルサイトで気になる物件がありましたらお気軽にお問い合わせ下さい。 |
※掲載されている物件データが現状と異なる場合は現状を優先します。
周辺地図MAP
ローンシミュレーション
LOAN SIMULATION
- 物件の価格
- 3,980万円
- 月々の返済額
- 円
- 年間の返済額
- 円
- 返済総額
- 円
- 利息合計
- 円
万円
%
年
※毎回の返済額が開始から終了まで均等となる「元利均等返済」で算出しています。
※金利は期間中固定となる固定金利を採用しています。
※月々の返済額は小数点以下を繰り上げしています。
※シミュレーションでの結果は、あくまでも目安で、概算になります。実際にローン契約をする際は、詳細を金融機関にご確認ください。
※実際のローン契約時には諸費用・税金(手数料や印紙税、保証料など)が別途かかりますので、契約の際にご確認ください。
株式会社カサハラらんどホームCOMPANY
所在地 |
埼玉県鶴ヶ島市鶴ヶ丘1-20 |
||
|---|---|---|---|
免許番号 |
埼玉県知事免許(4)第21347号 |
||
会員 |
(社)不動産保証協会
(社)全日本不動産協会
|
||
電話番号 |
049-285-6300 |
FAX番号 |
049-285-6305 |
営業時間 |
10:00~18:00 |
定休日 |
水曜日 |
他社ホームページやポータルサイトで気になる物件がありましたらお気軽にお問い合わせ下さい。
