価格 |
3,880万円 |
種目 |
新築戸建 |
|---|---|---|---|
交通 |
東武東上線川越市駅まで 徒歩12分 |
||
所在地 |
川越市上野田町 |
駐車場 |
1台 |
間取 |
- |
間取詳細 |
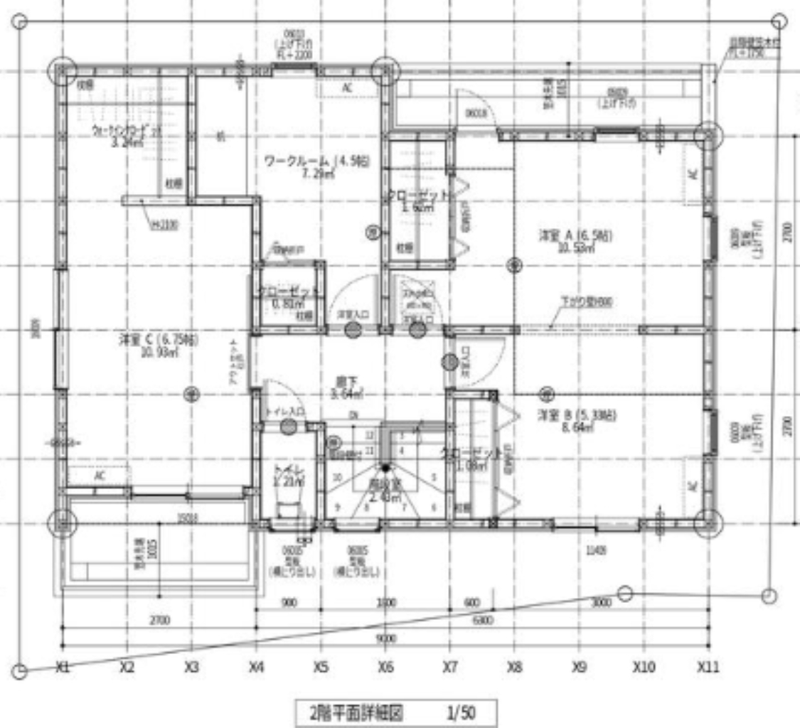
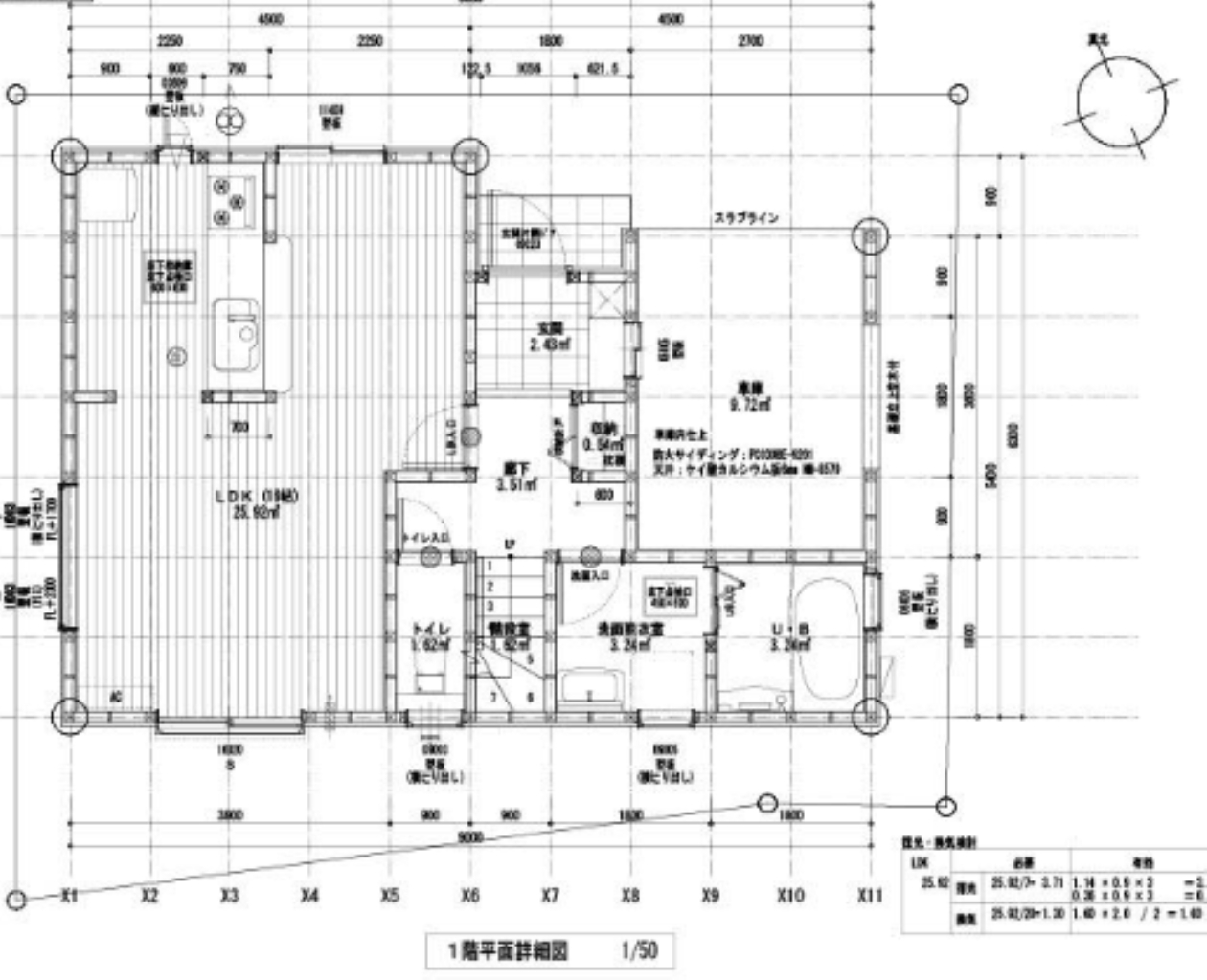
(1F)LDK16、(2F)洋6.75、(2F)洋6.5、(2F)洋5.3、(2F)書斎4.5 |
西暦築年月 |
2026/05(建築予定) |
現況 |
建設中 |
土地面積 |
88.21m²(26.68坪) |
建物面積 |
105.7m²(31.97坪) |
学区 |
川越市立泉小学校
川越市立野田中学校 |
★仲介手数料無料 |
お電話でのお問い合わせ
物件番号:36720
お電話でお問い合わせの際は、物件番号をお伝えください。
049-285-6300
営業時間:10:00~18:00
定休日:水曜日
物件詳細DETAIL
バス停名 |
停歩 |
||
|---|---|---|---|
建物構造 |
木造 |
地目 |
宅地 |
建ぺい率 |
60% |
容積率 |
160% |
都市計画 |
市街化区域 |
用途地域 |
第一種住居地域 |
取引態様 |
仲介 |
引渡時期 |
2026/05 下旬 |
接道(全て) |
北東 4m(幅員) 公道 |
土地権利 |
所有権 |
特色 |
☆川越市上野田町 新築一戸建て ★仲介手数料無料新築一戸建て! ☆東武東上線 「川越市駅」 徒歩12分 ☆公営水道、本下水、都市ガス ☆駐車場 ☆住宅性能評価書取得予定物件! ☆フラット35S利用可! ※現地販売業者さんは売主ではございません。 アンケート等の手続きをされますと当社での物件紹介(仲介料手数料無料)が出来なくなります。ご内覧を希望のお客様は当社にて立ち合い・ご案内をさせて頂きますのでお手数ですがTEL049-285-6300までお電話下さい。急いで現地へ向かいますので御連絡お待ちしております。(^o^) |
||
情報更新日 |
2026年03月19日 |
次回更新予定日 |
2026年03月20日 |
取引条件有効期限 |
2026年03月19日 |
評価点 |
88点 |
他社ホームページやポータルサイトで気になる物件がありましたらお気軽にお問い合わせ下さい。 |
※掲載されている物件データが現状と異なる場合は現状を優先します。
ローンシミュレーション
LOAN SIMULATION
- 物件の価格
- 3,880万円
- 月々の返済額
- 円
- 年間の返済額
- 円
- 返済総額
- 円
- 利息合計
- 円
万円
%
年
※毎回の返済額が開始から終了まで均等となる「元利均等返済」で算出しています。
※金利は期間中固定となる固定金利を採用しています。
※月々の返済額は小数点以下を繰り上げしています。
※シミュレーションでの結果は、あくまでも目安で、概算になります。実際にローン契約をする際は、詳細を金融機関にご確認ください。
※実際のローン契約時には諸費用・税金(手数料や印紙税、保証料など)が別途かかりますので、契約の際にご確認ください。
株式会社カサハラらんどホームCOMPANY
所在地 |
埼玉県鶴ヶ島市鶴ヶ丘1-20 |
||
|---|---|---|---|
免許番号 |
埼玉県知事免許(4)第21347号 |
||
会員 |
(社)不動産保証協会
(社)全日本不動産協会
|
||
電話番号 |
049-285-6300 |
FAX番号 |
049-285-6305 |
営業時間 |
10:00~18:00 |
定休日 |
水曜日 |
他社ホームページやポータルサイトで気になる物件がありましたらお気軽にお問い合わせ下さい。
