価格 |
2,280万円 |
種目 |
中古戸建 |
|---|---|---|---|
交通 |
東武東上線上福岡駅まで 徒歩21分 |
||
所在地 |
川越市大字藤間 |
駐車場 |
1台 |
間取 |
3LDK |
間取詳細 |
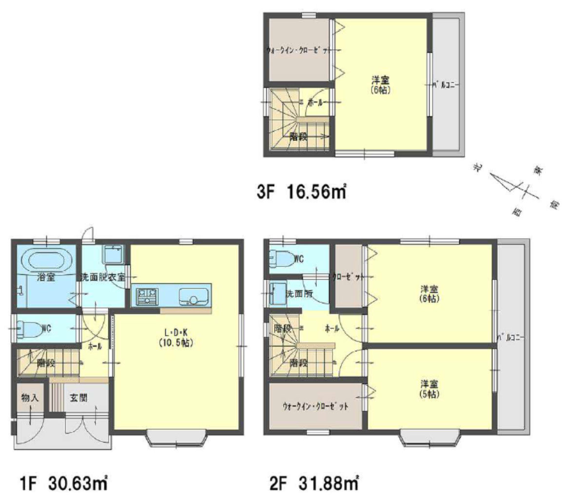
(1F)LDK10.5、(2F)洋6、(2F)洋5、(3F)洋6 |
西暦築年月 |
2005/09(築20年) |
現況 |
居住中 |
土地面積 |
57.33m²(17.34坪) |
建物面積 |
79.07m²(23.91坪) |
学区 |
川越市立高階西小学校 400m
川越市立高階西中学校 900m |
お電話でのお問い合わせ
物件番号:36693
お電話でお問い合わせの際は、物件番号をお伝えください。
049-285-6300
営業時間:10:00~18:00
定休日:水曜日
物件詳細DETAIL
バス停名 |
停歩 |
||
|---|---|---|---|
建物構造 |
木造 |
地目 |
宅地 |
建ぺい率 |
70% |
容積率 |
160% |
都市計画 |
市街化区域 |
用途地域 |
第二種住居地域 |
取引態様 |
仲介 |
引渡時期 |
相談 |
接道(全て) |
南西 4m(幅員) 公道
南東 4m(幅員) 私道 |
土地権利 |
所有権 |
特色 |
☆川越市藤間 中古戸建て ☆東武東上線『上福岡駅』21分! ☆敷地面積17坪! ☆平成17年9月築、3LDK中古住宅です! ☆南西×南東道路の角地! ☆家事動線の良い対面キッチン付きのリビング! ☆収納多く荷物が片付きます! ☆川越立高階西小学校、高階西中学校の通学区です ☆公営水道、本下水、個別プロパンガス ☆ヤオコー(約190m)、セブンイレブン(約210m)、コープ共済(約600m) |
||
情報更新日 |
2025年12月12日 |
次回更新予定日 |
2025年12月13日 |
取引条件有効期限 |
2025年12月12日 |
評価点 |
83点 |
他社ホームページやポータルサイトで気になる物件がありましたらお気軽にお問い合わせ下さい。 |
※掲載されている物件データが現状と異なる場合は現状を優先します。
周辺地図MAP
ローンシミュレーション
LOAN SIMULATION
- 物件の価格
- 2,280万円
- 月々の返済額
- 円
- 年間の返済額
- 円
- 返済総額
- 円
- 利息合計
- 円
万円
%
年
※毎回の返済額が開始から終了まで均等となる「元利均等返済」で算出しています。
※金利は期間中固定となる固定金利を採用しています。
※月々の返済額は小数点以下を繰り上げしています。
※シミュレーションでの結果は、あくまでも目安で、概算になります。実際にローン契約をする際は、詳細を金融機関にご確認ください。
※実際のローン契約時には諸費用・税金(手数料や印紙税、保証料など)が別途かかりますので、契約の際にご確認ください。
株式会社カサハラらんどホームCOMPANY
所在地 |
埼玉県鶴ヶ島市鶴ヶ丘1-20 |
||
|---|---|---|---|
免許番号 |
埼玉県知事免許(4)第21347号 |
||
会員 |
(社)不動産保証協会
(社)全日本不動産協会
|
||
電話番号 |
049-285-6300 |
FAX番号 |
049-285-6305 |
営業時間 |
10:00~18:00 |
定休日 |
水曜日 |
他社ホームページやポータルサイトで気になる物件がありましたらお気軽にお問い合わせ下さい。
