価格 |
4,180万円 |
種目 |
新築戸建 |
|---|---|---|---|
交通 |
東武東上線新河岸駅まで 徒歩14分 |
||
所在地 |
川越市大字寺尾 |
駐車場 |
3台 |
間取 |
3SLDK |
間取詳細 |
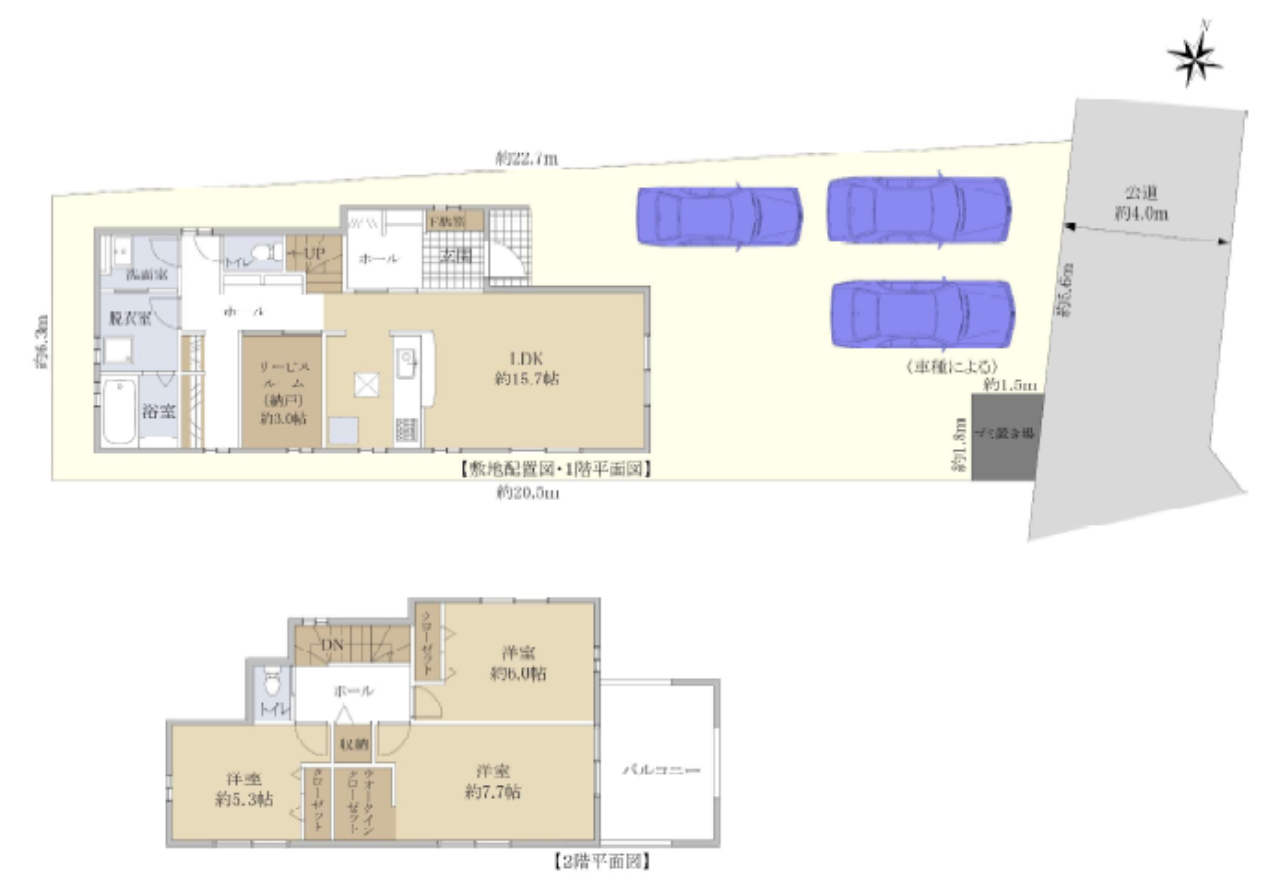
(1F)LDK15.7、(1F)S3、(2F)洋5.3、(2F)洋6、(2F)洋7.7 |
西暦築年月 |
2026/03(建築予定) |
現況 |
建設中 |
土地面積 |
151.52m²(45.83坪) |
建物面積 |
110.16m²(33.32坪) |
学区 |
川越市立高階小学校 1,060m
川越市立寺尾中学校 1,020m |
お電話でのお問い合わせ
物件番号:36599
お電話でお問い合わせの際は、物件番号をお伝えください。
049-285-6300
営業時間:10:00~18:00
定休日:水曜日
物件詳細DETAIL
バス停名 |
停歩 |
||
|---|---|---|---|
建物構造 |
木造 |
地目 |
宅地 |
建ぺい率 |
50% |
容積率 |
100% |
都市計画 |
市街化区域 |
用途地域 |
第一種低層住居専用地域 |
取引態様 |
仲介 |
引渡時期 |
2026/03 下旬 |
接道(全て) |
北東 4m(幅員) 公道 |
土地権利 |
所有権 |
特色 |
【1号棟】 ☆川越市寺尾 新築一戸建て 全3棟現場 ※本物件は現在仲介手数料無料でのご紹介はできません。 ☆東武東上線『新河岸駅』徒歩14分! ☆敷地面積45坪! ☆お部屋全体が見渡せる対面キッチン付きのリビング! ☆作業スーペースやテレワークにも使えるサービスルームあり! ☆浴室乾燥機、浄水器、カウンターキッチン、24時間換気システム、TVモニター付きインターホンなどの設備です! ☆駐車場3台! ☆川越市立高階小学校、寺尾中学校の通学区です ☆公営水道、本下水、都市ガス ☆東武ストア新河岸店(約1090m)、ドラッグストアコスモス新河岸店(約820m)、川越砂郵便局(約680m) |
||
情報更新日 |
2025年11月23日 |
次回更新予定日 |
2025年11月24日 |
取引条件有効期限 |
2025年11月24日 |
評価点 |
89点 |
※掲載されている物件データが現状と異なる場合は現状を優先します。
ローンシミュレーション
LOAN SIMULATION
- 物件の価格
- 4,180万円
- 月々の返済額
- 円
- 年間の返済額
- 円
- 返済総額
- 円
- 利息合計
- 円
万円
%
年
※毎回の返済額が開始から終了まで均等となる「元利均等返済」で算出しています。
※金利は期間中固定となる固定金利を採用しています。
※月々の返済額は小数点以下を繰り上げしています。
※シミュレーションでの結果は、あくまでも目安で、概算になります。実際にローン契約をする際は、詳細を金融機関にご確認ください。
※実際のローン契約時には諸費用・税金(手数料や印紙税、保証料など)が別途かかりますので、契約の際にご確認ください。
株式会社カサハラらんどホームCOMPANY
所在地 |
埼玉県鶴ヶ島市鶴ヶ丘1-20 |
||
|---|---|---|---|
免許番号 |
埼玉県知事免許(4)第21347号 |
||
会員 |
(社)不動産保証協会
(社)全日本不動産協会
|
||
電話番号 |
049-285-6300 |
FAX番号 |
049-285-6305 |
営業時間 |
10:00~18:00 |
定休日 |
水曜日 |

他社ホームページやポータルサイトで気になる物件がありましたらお気軽にお問い合わせ下さい。
