価格 |
4,098万円 |
種目 |
新築戸建 |
|---|---|---|---|
交通 |
東武東上線鶴ヶ島駅まで 徒歩12分 |
||
所在地 |
鶴ヶ島市大字上広谷 |
駐車場 |
2台 |
間取 |
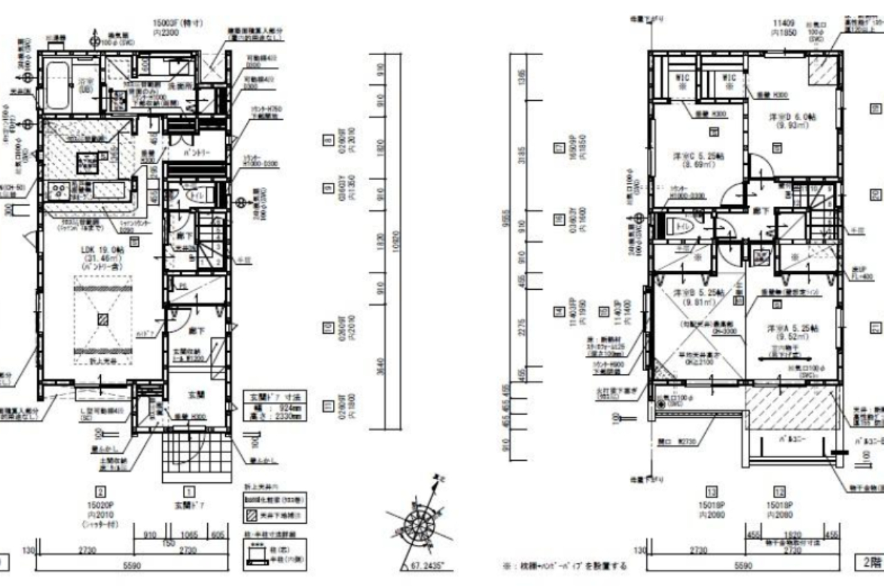
4LDK |
間取詳細 |
(1F)LDK19、(2F)洋6、(2F)洋5.25、(2F)洋10.5 |
西暦築年月 |
2026/02(建築予定) |
現況 |
建設中 |
土地面積 |
149.18m²(45.12坪) |
建物面積 |
107.52m²(32.52坪) |
学区 |
鶴ヶ島市立杉下小学校 550m
鶴ヶ島市立藤中学校 1,400m |
お電話でのお問い合わせ
物件番号:36488
お電話でお問い合わせの際は、物件番号をお伝えください。
049-285-6300
営業時間:10:00~18:00
定休日:水曜日
物件詳細DETAIL
バス停名 |
停歩 |
||
|---|---|---|---|
建物構造 |
木造 |
地目 |
宅地 |
建ぺい率 |
60% |
容積率 |
200% |
都市計画 |
市街化区域 |
用途地域 |
第一種中高層住居専用地域 |
取引態様 |
仲介 |
引渡時期 |
2026/02 中旬 |
接道(全て) |
南 7.3m(幅員) 公道 |
土地権利 |
所有権 |
特色 |
【3号棟】 ☆鶴ヶ島市上広谷 新築一戸建て 全3棟現場 ※本物件は現在仲介手数料無料でのご紹介はできません。 ☆長期優良住宅 ☆住宅性能評価書取得予定物件! ☆フラット35S利用可! ☆南7.3m道路 ☆日当り良好! ☆駐車場2台 ☆小学校徒歩10分以内! ☆浴室乾燥機ユニットバス! ☆カウンターキッチン ☆トイレ2箇所, ☆各部屋収納スペース ☆ウォークインクローゼット ☆床下収納 ☆公営水道、本下水、都市ガス |
||
情報更新日 |
2025年12月15日 |
次回更新予定日 |
2025年12月16日 |
取引条件有効期限 |
2025年12月15日 |
評価点 |
90点 |
※掲載されている物件データが現状と異なる場合は現状を優先します。
周辺地図MAP
ローンシミュレーション
LOAN SIMULATION
- 物件の価格
- 4,098万円
- 月々の返済額
- 円
- 年間の返済額
- 円
- 返済総額
- 円
- 利息合計
- 円
万円
%
年
※毎回の返済額が開始から終了まで均等となる「元利均等返済」で算出しています。
※金利は期間中固定となる固定金利を採用しています。
※月々の返済額は小数点以下を繰り上げしています。
※シミュレーションでの結果は、あくまでも目安で、概算になります。実際にローン契約をする際は、詳細を金融機関にご確認ください。
※実際のローン契約時には諸費用・税金(手数料や印紙税、保証料など)が別途かかりますので、契約の際にご確認ください。
株式会社カサハラらんどホームCOMPANY
所在地 |
埼玉県鶴ヶ島市鶴ヶ丘1-20 |
||
|---|---|---|---|
免許番号 |
埼玉県知事免許(4)第21347号 |
||
会員 |
(社)不動産保証協会
(社)全日本不動産協会
|
||
電話番号 |
049-285-6300 |
FAX番号 |
049-285-6305 |
営業時間 |
10:00~18:00 |
定休日 |
水曜日 |

他社ホームページやポータルサイトで気になる物件がありましたらお気軽にお問い合わせ下さい。
