
価格 |
2,780万円 |
種目 |
中古戸建 |
---|---|---|---|
交通 |
東武東上線川越市駅まで 徒歩7分 |
||
所在地 |
川越市上野田町 |
駐車場 |
1台 |
間取 |
3LDK |
間取詳細 |
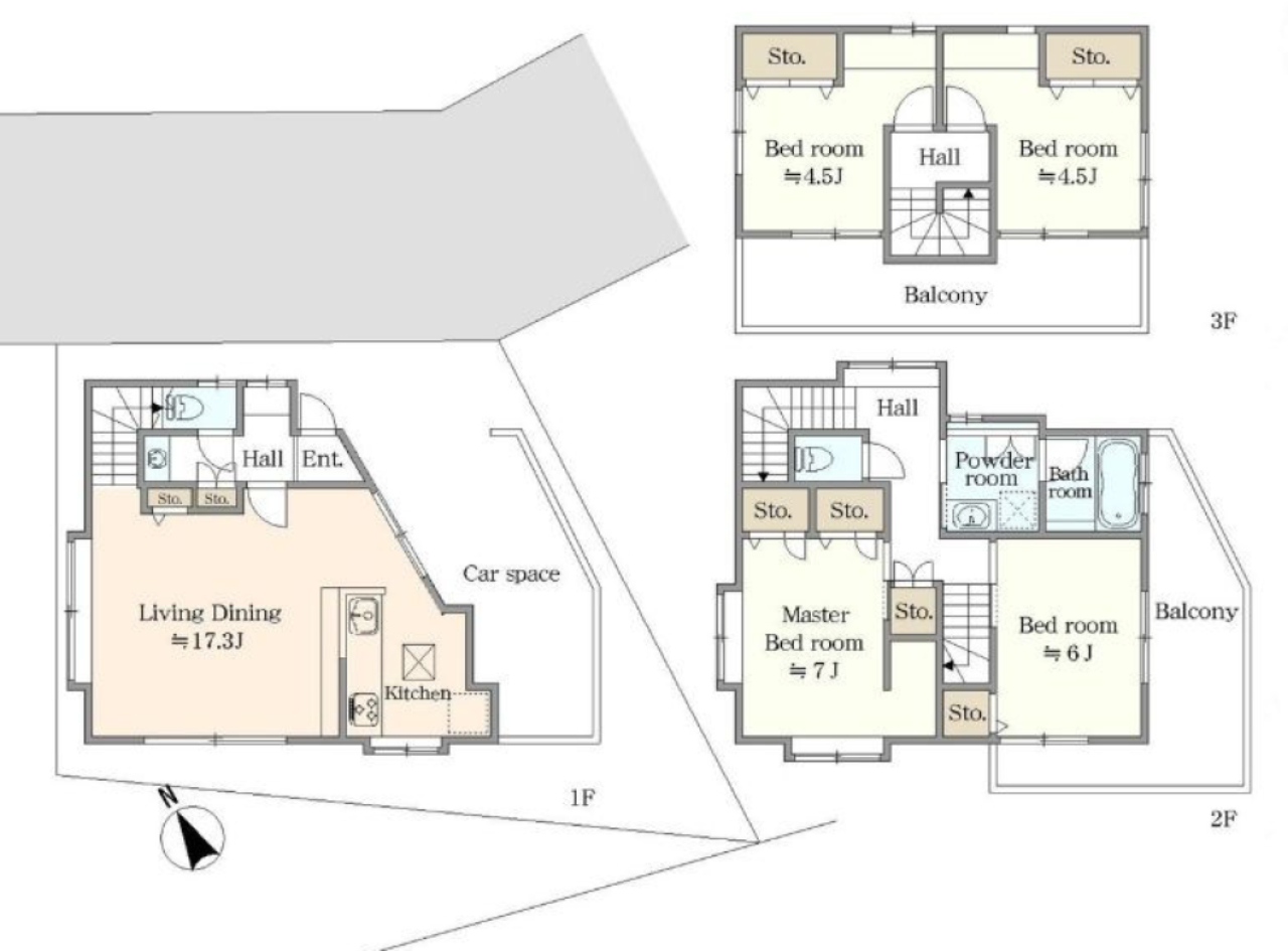
(1F)LDK18、(2F)洋6、(2F)洋6.5、(3F)洋12(6・6) |
西暦築年月 |
2002/09(築23年) |
現況 |
空家 |
土地面積 |
88.01m²(26.62坪) |
建物面積 |
107.02m²(32.37坪) |
学区 |
川越市立泉小学校 650m
川越市立野田中学校 1,100m |
お電話でのお問い合わせ
物件番号:36363
お電話でお問い合わせの際は、物件番号をお伝えください。
049-285-6300
営業時間:10:00~18:00
定休日:水曜日
物件詳細DETAIL
バス停名 |
停歩 |
||
---|---|---|---|
建物構造 |
木造 |
地目 |
宅地 |
建ぺい率 |
60% |
容積率 |
168% |
都市計画 |
市街化区域 |
用途地域 |
第一種住居地域 |
取引態様 |
仲介 |
引渡時期 |
相談 |
接道(全て) |
北 4.2m(幅員) 公道 |
土地権利 |
所有権 |
特色 |
☆川越市上野田町中古戸建て ☆東武東上線「川越市駅」徒歩7分 ☆平成14年築の3階建て住宅! ☆2025年7月リフォーム済み! ☆1階リビング18帖対面キッチン! ☆3階の12帖はお子さん部屋や趣味のお部屋としてもご活用できます! ☆2階・3階共にバルコニーがあります! ☆ビルトイン駐車場 ☆公営水道、本下水、都市ガス ☆日当り良好! ☆川越市立泉小学校・川越市立野田中学校通学区! |
||
情報更新日 |
2025年10月09日 |
次回更新予定日 |
2025年10月10日 |
取引条件有効期限 |
2025年10月10日 |
評価点 |
85点 |
![]() |
※掲載されている物件データが現状と異なる場合は現状を優先します。
周辺地図MAP
ローンシミュレーション
LOAN SIMULATION
- 物件の価格
- 2,780万円
- 月々の返済額
- 円
- 年間の返済額
- 円
- 返済総額
- 円
- 利息合計
- 円
万円
%
年
※毎回の返済額が開始から終了まで均等となる「元利均等返済」で算出しています。
※金利は期間中固定となる固定金利を採用しています。
※月々の返済額は小数点以下を繰り上げしています。
※シミュレーションでの結果は、あくまでも目安で、概算になります。実際にローン契約をする際は、詳細を金融機関にご確認ください。
※実際のローン契約時には諸費用・税金(手数料や印紙税、保証料など)が別途かかりますので、契約の際にご確認ください。

株式会社カサハラらんどホームCOMPANY
所在地 |
埼玉県鶴ヶ島市鶴ヶ丘1-20 |
||
---|---|---|---|
免許番号 |
埼玉県知事免許(4)第21347号 |
||
会員 |
(社)不動産保証協会
(社)全日本不動産協会
|
||
電話番号 |
049-285-6300 |
FAX番号 |
049-285-6305 |
営業時間 |
10:00~18:00 |
定休日 |
水曜日 |